已有2356位用户享受免费参观样板房服务
定制家具9折起,成品家具6.5折起
7.1-7.30预约可享受500抵用券
原始房型图:

图中改动点,小编已为大家用蓝框框出。
设计改动点:
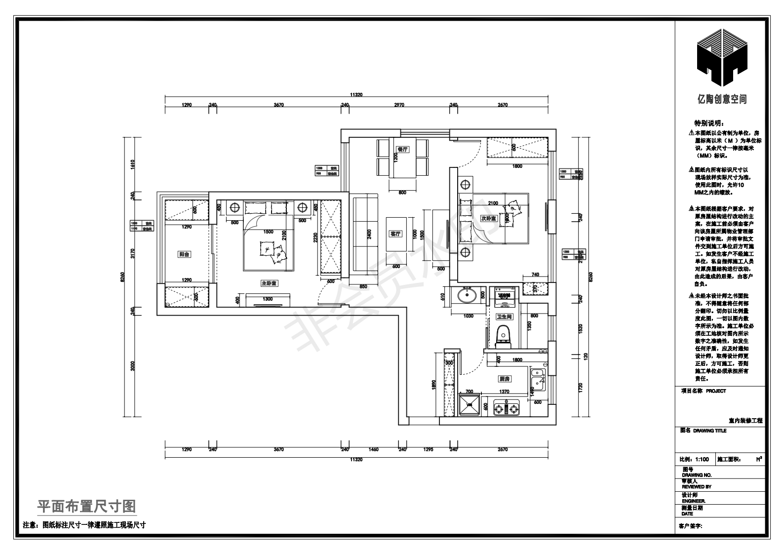
一、将原本两个小房间中的墙打通,改成了次卧,增大了次卧的面积和储物空间。
二、随着次卧的面积增大,卫生间的墙也随之上移,增大了卫生间的面积,做成了干湿分离。
平面布置图:

对于老人来说,卧室空间的变大,居住的舒适程度也会随之提高。让王先生满意的地方也不止这一点,还有公司的诚信,合理的价格,良好的施工质量。
王先生有几个朋友也是做建筑行业的,其中做监理的有好几个,都到王先生家看了施工的具体情况,觉得施工的工艺做的很不错,并且所使用的材料品牌都满足王先生的需求。这也是王先生觉得我们做的不错的地方,也是他信赖亿陶的原因。
上门量尺/个性定制/精准报价
概念方案/户型解析